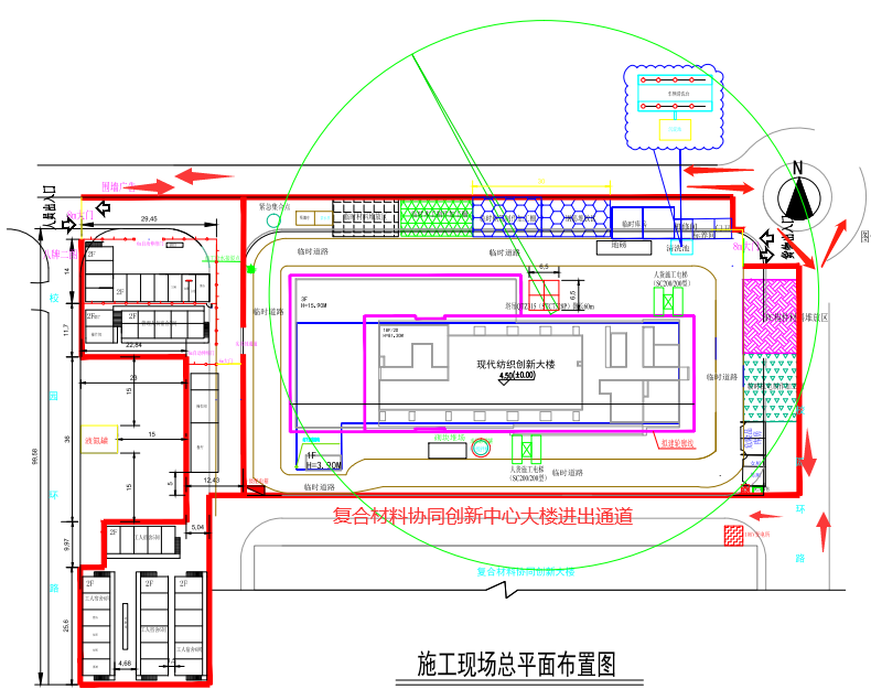
根据学校事业发展需要,我校“十四五”规划中的现代纺织创新大楼项目已完成前期手续,近期即将开工。因项目施工需要,从2021年11月20日起,对项目周边东环路北段、北环路东段以及与复合材料协同创新中心大楼相邻的半幅道路进行封闭。
复合材料协同创新中心大楼的车辆请从项目南面相邻道路进出,若有大型设备车辆需要进出,请提前与基建后勤处联系予以协调。若遇大型构件或设备吊装需要全封闭有关道路时,将现场告示。
施工期间请师生注意安全,跑步学生尽量绕行。谢谢师生配合!
特此通知。

基建后勤处
保卫处
2021年11月19日